文字サイズ:
背景の色

施設図面/大ホール
DRAWING/MAIN HOLL

大ホール 平面図 幕 1:100

大ホール 平面図 幕 1:100

平面図 幕 1:200

大ホール 平面図 幕 1:100

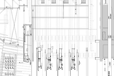
大ホール 断面図 幕 1:100(バトンピッチ入)

大ホール 断面図 幕 1:100(バトンピッチ入)

断面図 幕 1:200(バトンピッチ入)

断面図 幕 1:200(バトンピッチ入)

大ホール 平面図 反射板(中編成)1:100

大ホール 平面図 反射板(中編成)1:100

平面図 反射板(大編成)1:100

平面図 反射板(大編成)1:100

大ホール 平面図 反射板(拡張編成)1:100

大ホール 平面図 反射板(拡張編成)1:100

断面図 反射板(中編成)1:200

断面図 反射板(中編成)1:200

大ホール 断面図 反射板(大編成)1:200

大ホール 断面図 反射板(大編成)1:200

断面図 反射板(拡張編成)1:200

断面図 反射板(拡張編成)1:200

大ホール 1階席 2階席 基本客席図

大ホール 1階席 2階席 基本客席図

大ホール 3階席 4階席 客席図

大ホール 3階席 4階席 客席図

大ホール レーザー照射禁止エリア

大ホール レーザー照射禁止エリア

(記入例)レーザー機器使用許可申請書

(記入例)レーザー機器使用許可申請書

大ホール レーザー機器使用許可申請書

大ホール レーザー機器使用許可申請書