文字サイズ:
背景の色

施設図面/セキショウ中劇場
DRAWING/MAIN THEATER

中劇場 客席図 8間プロセニアム形式(基本舞台)

中劇場 客席図 8間プロセニアム形式(基本舞台)

客席図 6間プロセニアム形式

客席図 6間プロセニアム形式

中劇場 客席図 花道形式

中劇場 客席図 花道形式

客席図 能舞台形式

客席 能舞台形式

中劇場 客席図 ポディウム形式

中劇場 客席図 ポディウム形式

客席図 スラスト形式

客席図 スラスト形式

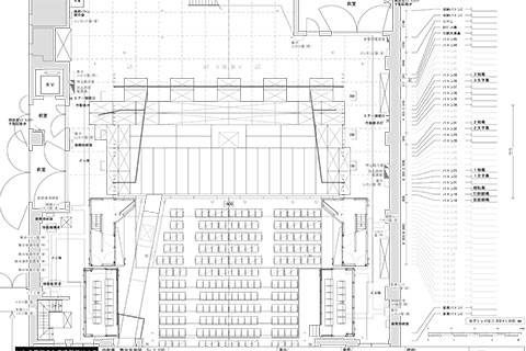
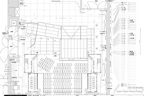
中劇場 平面図 8間プロセニアム形式(基本舞台)

中劇場 平面図 8間プロセニアム形式(基本舞台)

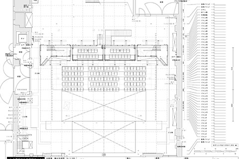
平面図 6間プロセニアム形式

平面図 6間プロセニアム形式

中劇場 平面図 花道形式

中劇場 平面図 花道形式

平面図 能舞台形式

平面 能舞台形式

中劇場 平面図 能舞台形式(ブリッジ移動)

中劇場 平面図 能舞台形式(ブリッジ移動)

平面図 ポディウム形式

平面図 ポディウム形式

中劇場 平面図 スラスト形式

中劇場 平面図 スラスト形式

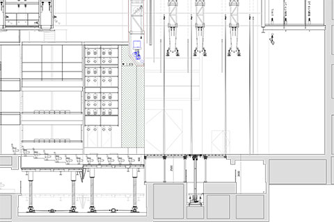
断面図 8間プロセニアム形式(基本舞台)

断面図 8間プロセニアム形式(基本舞台)

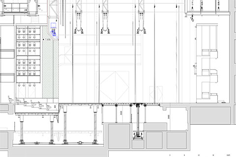
中劇場 断面図 6間プロセニアム形式

中劇場 断面図 6間プロセニアム形式

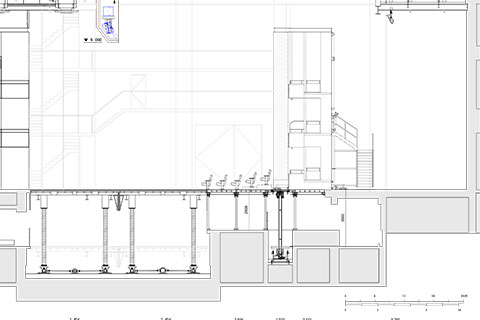
断面図 ポディウム形式

断面図 ポディウム形式

中劇場 レーザー照射禁止エリア

中劇場 レーザー照射禁止エリア

(記入例)レーザー機器使用許可申請書

(記入例)レーザー機器使用許可申請書

中劇場 レーザー機器使用許可申請書

中劇場 レーザー機器使用許可申請書